




Giỏ hàng: giá chủ đầu tư
Ưu đãi: Chiết khấu từ 0,5 > 1% (chỉ trong đợt 1).
mỗi 3 tháng thanh toán 10%
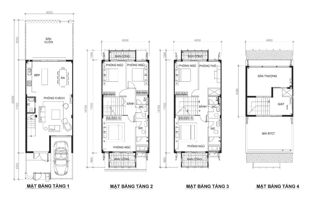
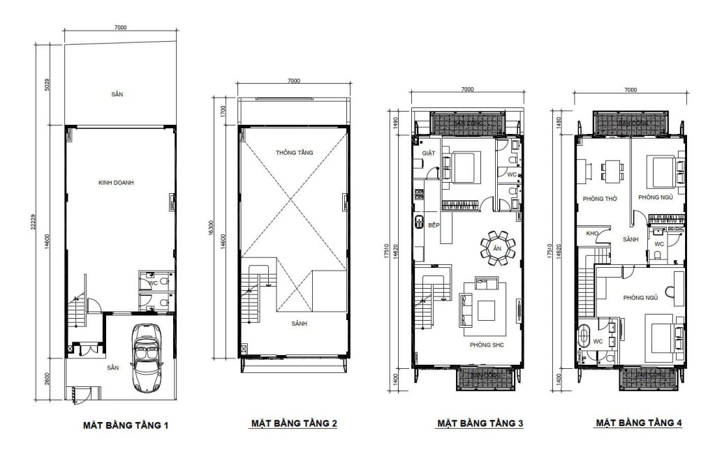
Senturia An Phú tọa lạc tại mặt tiền đường Song Hành, phường An Phú, TP. Thủ Đức, đây là một trong những khu vực phát triển năng động nhất của thành phố. Với vị trí đắc địa này, dự án kết nối thuận tiện đến các khu vực trọng điểm và tiện ích xung quanh. Bên cạnh đó là mật độ dân cư đông đúc tại nơi đây tạo ra hàng nghìn cơ hội kinh doanh và đầu tư.

Nằm ngay mặt tiền đường Song Hành, sở hữu ba ưu điểm nổi bật có thể kể đến như:
Từ dự án, cư dân chỉ mất khoảng 5 – 15 phút để di chuyển đến trung tâm Quận 1, Quận 3, Quận Bình Thạnh và các khu đô thị lân cận như Thảo Điền, Sala. Các tiện ích hàng ngày như bệnh viện, trường học quốc tế, trung tâm thương mại cũng nằm vỏn vẹn trong bán kính 5km, đáp ứng mọi nhu cầu sinh hoạt của cư dân. Ngoài ra, cư dân còn có thể di chuyển thuận tiện và nhanh chóng qua các khu vực lân cận bằng tuyến Metro.
Khu thể thao Rạch Chiếc dự tính sẽ được quy hoạch sẽ trở thành trung tâm thể thao quốc gia. Theo dự tính khu vực này sẽ thu hút nhiều sự kiện thể thao lớn, tạo đà phát triển cho khu vực và gia tăng giá trị bất động sản trong khu vực. Với diện tích rộng lớn, đây sẽ là một trong những trọng điểm nổi bật nhất khi hình thành.
Với sự hoàn thiện của hạ tầng giao thông như tuyến Metro số 1 và các dự án cầu đường mới. Đây sẽ trở thành một trong những khu vực có hệ thống cơ sở hạ tầng hàng đầu Việt Nam. Ngoài ra, An Phú còn được dự báo sẽ tăng trưởng mạnh mẽ trong 2 – 5 năm tới. Với những ưu điểm trên, dự án rất phù hợp để đầu tư cho thuê hoặc kinh doanh.
Hàng loạt tiện ích cao cấp tạo nên một “resort” nghỉ dưỡng 5 sao tại gia, nơi cư dân được trải nghiệm một kì nghỉ đích thực với hơn 41 tiện ích dịch vụ hàng đầu. Hơn 60% diện tích dự án được chủ đầu tư dành trọn cho phát triển hạ tầng và các tiện ích dân sinh như ồ bơi, phòng gym, công viên cây xanh, khu vui chơi trẻ em và trung tâm thương mại,..

Hồ Bơi Chính

Hồ Bơi Cho Trẻ

Thể Dục Ven Sông

Công Viên Nối Dài

Cafe Thư Giãn

Phòng Tập Gym




Chào Anh/Chị :) Em là Quỳnh Anh, mình cần em tư vấn thêm thông tin gì không ạ?
Anh/Chị vui lòng cho em xin số Zalo để tiện gửi thông tin chi tiết về dự án ạ!